Appartement À Vendre, de type 2 au type 4, Toulon Ouest


Réf. 5859
TOULON - 83200

L'agence Orpi CABANIS située à Toulon sur l'avenue Vauban, fait partie du réseau Orpi depuis 1964 vous présente ce nouveau programme neuf. À Toulon OUEST dans le quartier calme de Bonfante–Florane, découvrez une résidence de 48 logements du 2 au 4 pièces. Une excellente opportunité pour les investisseurs à la recherche de biens bien situés et offrant une rentabilité intéressante. N’attendez plus ! Contactez dès à présent votre Agence Orpi Cabanis à Toulon, avenue Vauban, au 04.83.735.600 ou par email à cabanisvauban@orpi.com pour obtenir davantage d’informations ou organiser une visite. Pour consulter toutes nos autres offres, visitez notre site : www.agencecabanis.com.

275 619 €

Les caractéristiques DEP / GES sont en cours de réalisation...

Ascenseur
Oui
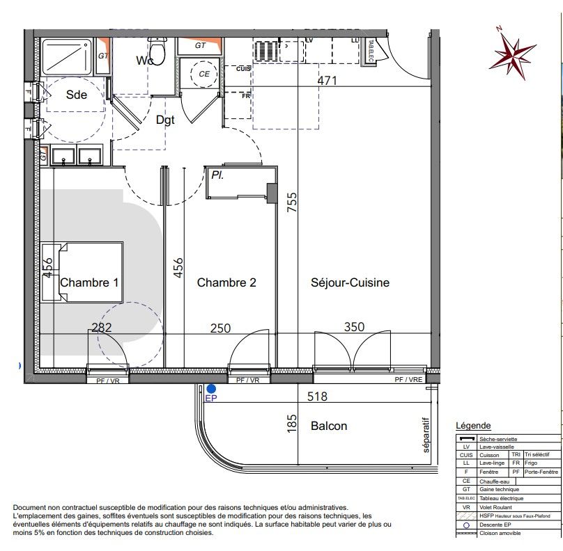
Nombre de pièces
3
Nombre de chambres
2
Nombre de WC
1
Nombre de salles de bains
1
Nombre de balcons
1
Surface Carrez
65 m2
Imprimer

Agence Toulon Vauban

82 Avenue Vauban
Service Transactions
Service Locations
Service Gestion